KGS Wennigsen Neubau einer Mensa

Nach und nach werden die Fenster eingesetzt. Durch die baldige große Verglasung des offenen Mensaraums, bleibt ein „Hindurchblicken“ des Neubaus möglich.

Realschule Schloss Neuhaus

Die Bohrpfähle sind gesetzt, damit hat die Gründung des Neubaus begonnen.

Weihnachtsgrüße

Schlattmeier Architekten wünscht ein frohes Weihnachtsfest und ein gutes und erfolgreiches Jahr 2026.

KGS Wennigsen Neubau einer Mensa

Die Rohbauarbeiten neigen sich dem Ende zu, das Gerüst verschwindet und der Innenraum der Mensa zeigt seine klare, großzügige sowie offene Raumstruktur.

KGS Wennigsen Neubau einer Mensa

Der Bürgermeister der Gemeinde Wennigsen Herr Klokemann begrüßt die Besucher des Richtfestes.

Realschule Schloss Neuhaus

Für die Erweiterung der Realschule starten die Erd- und Vermessungsarbeiten.

KGS Wennigsen Neubau einer Mensa

Die Rohbauarbeiten an der Sophie-Scholl-Gesamtschule sind in vollem Gange. Die hellen und offenen Raumstrukturen sind bereits jetzt gut zu erkennen.

Grundschule Wennigsen VgV 1. Rang

Schlattmeier Architekten freuen sich über den 1. Rang im VgV-Verfahren für den Neubau der Grundschule Wennigsen.

Wettbewerb Umgestaltung Schulzentrum in Dissen Wettbewerb 1. Preis

Schlattmeier Architekten freuen sich über den 1. Preis beim Wettbewerbsverfahren für die Umgestaltung des Schulzentrums in Dissen.

KGS Wennigsen VgV 1. Rang Schulerweiterung mit Mensa

Spatenstich mit dem Bürgermeister Ingo Klokemann und Schulleiter Kai Birkner.

Drei Berufsschulen ● Kreis Herford

In einer feierlichen Stunde wurde das Erweiterungsgebäude an die drei Berufsschulen übergeben. Der Landrat Jürgen Müller erhielt für den Kreis Herford den Schlüssel.

KGS Wennigsen                VgV 1. Rang

Schlattmeier Architekten haben den Bauantrag für die Maßnahmen eingereicht.

VgV Grundschule Porta Neesen 2. Rang

Schlattmeier Architekten freuen sich über den 2. Rang im VgV Verfahren für die Grundschule Porta Neesen.

Drei Berufsschulen ● Kreis Herford

1972 WBW 1. PREIS 

ERWEITERUNG MIT MULTIFUNKTIONALER MENSA

2020 VGV 1. RANG 

Grundschule Eidinghausen

Die Mensa/ Aula und das Stadtteilzentrum in Eidinghausen sind als letzter Bauabschnitt in Betrieb gegangen.

Anerkennung 4. Rang WBW Feuerwache Hüllhorst

Schlattmeier Architekten erhalten eine Anerkennung/ 4. Rang für ihren Wettbewerbsbeitrag für das Gerätehaus der Feuerwache Hüllhorst.

SCHLATTMEIER ARCHITEKTEN

Senden Sie bitte Ihre aussagekräftigen Bewerbungsunterlagen an die folgende Emailadresse:  bewerbung@schlattmeier-architekten.de

Wohnhaus für private Bauherren Publikation in „Naturstein“ 06

Die klare Gebäudestruktur wird durch die Materialwahl Naturstein, Teak-Holz und Glas konsequent umgesetzt.

Grundschule Eidinghausen

Der erste Bauabschnitt der Grundschule Eidinghausen geht zum Schuljahresbeginn 2023/2024 in Betrieb.

3D – Planung und Modell

3D-Modelle geben die Möglichkeit Gebäude besser zu planen, zu begreifen und im interdisziplinaren Planungsteam Fortschritte und Entwicklungen zu integrieren.

Wohnhaus für private Bauherren Publikation in „WOHN!DESIGN Sommeredition 2023“

Die Innen- und Außenbeziehung war den Bauherren sehr wichtig und wurde von uns im Gebäudekonzept umgesetzt.

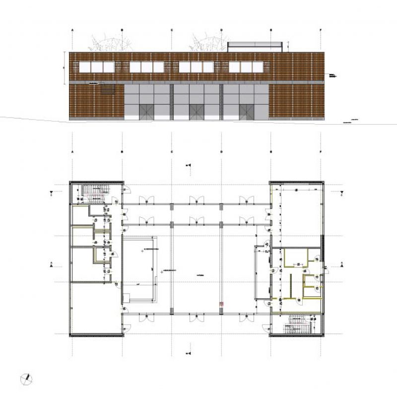
Berufsschulzentrum Herford Neubau einer Mensa

Das Gerüst an der Mensa des Berufsschulzentrums in Herford ist abgebaut und langsam kommt die Holzfassade mit ihren transparenten Ausschnitten gänzlich zum Vorschein.

Infoveranstaltung Porta Westfalica

Jens Ransiek Schulplaner / stellv. Schulleiter und             Karsten Schlattmeier erörtern zukunftsweisende Schulformen.

Zuschlag KGS Wennigsen VGV 1. Rang

Schlattmeier Architekten erhalten den Zuschlag für        den Neubau der Mensa und      die Sanierung des Bestandsgebäudes.

Grundsteinlegung Berufsschulzentrum Herford

Der Grundstein mit Zeitkapsel wurde mit Hoffnungen und Wünschen für eine gute Bauzeit, sowie eine fröhliche und erfolgreiche Gebäudenutzung, gelegt.

Grundschule Eidinghausen

Die klare, helle Architektur ist bereits in der Rohbauphase gut zu erkennen.

Zuschlag Realschule Schloß Neuhaus VgV 1. Rang

Schlattmeier Architekten freuen sich über den Zuschlag für die Erweiterung der Realschule Schloß Neuhaus im europaweiten Vergabeverfahren.

Berufsschulzentrum Herford Neubau einer Mensa

Die Bohrarbeiten für die Bohrpfahlgründung am Berufsschulzentrum Herford haben termingerecht begonnen.

Schlattmeier Architekten wünschen frohe Weihnachten und das Beste für das kommende Jahr

Schlattmeier Architekten zeigen mit ihrer diesjährigen Weihnachtskarte den aktuellen Workflow mit 3D-Modell und Plan auf den digitalen Geräten im Planungsalltag.

Grundsteinlegung Grundschule Eidinghausen

Der Grundstein mit Zeitkapsel wurde mit Hoffnungen und Wünschen für eine gute Bauzeit, sowie eine fröhliche und erfolgreiche Gebäudenutzung, gelegt.

Wettbewerb Grundschule Wilnsdorf 3. Preis

Schlattmeier Architekten freuen sich über den 3. Preis beim Wettbewerb Wilnsdorf.

Berufsschulzentrum Herford Neubau einer Mensa

Schlattmeier Architekten haben die Entwurfsphase der neuen Mensa abgeschlossen und die Planungen gehen voran.

FACID Die flexible Fassade – The flexible facade

Karsten Schlattmeier erzählt im Interview über seinen Beruf, seine Erfahrungen mit FACID und das Potenzial von Textilfassaden für Gebäude der Zukunft.

FACID Website

Grundschule Eidinghausen

Die Erdarbeiten an der Grundschule Eidinghausen sind gestartet.

Fassadensanierung Rathaus Bad Salzuflen

Aus alt mach neu. Der Fassadenaustausch im laufenden Betrieb ist in vollem Gange.

Parkhaus Schüco International

Das Schüco Parkhaus mit der Facid-Fassade wird in der aktuellen Fachzeitschrift DETAIL veröffentlicht.

Parkhaus Schüco International

Schlattmeier Architekten wünschen Ihnen ein frohes Weihnachtsfest und ein erfolgreiches Jahr 2021.

SCHLATTMEIER ARCHITEKTEN suchen erfahrenen Architekten /-in Lph 5-8 für die Umsetzung anspruchsvoller Bauvorhaben

Senden Sie bitte Ihre aussagekräftigen Bewerbungsunterlagen an die folgende Emailadresse: bewerbung@
schlattmeier-architekten.de

Freiherr-vom-Stein-Gymnasium Bünde

Karsten Schlattmeier erläutert dem Schulausschuss der Stadt Bünde die Entwurfsgedanken zur fertiggestellten Mensa/Aula des Freiherr-vom-Stein-Gymnasiums Bünde.

Berufsschulzentrum Herford

Schlattmeier Architekten freuen sich über den Zuschlag im VgV-Verfahren für den Neubau der Mensa- und Erweiterung des Berufsschulzentrums Herford.

Quartier Ringstraße Rheda Wiedenbrück

Mit dem Kellergeschoss für den ersten Baustein der insgesamt 90 Wohneinheiten wurde begonnen.

Grundschule Eidinghausen Bad Oeynhausen

Die Container für die Zeit der Bauarbeiten sind bereits aufgestellt.

Freiherr-vom-Stein-Gymnasium Bünde

Rechtzeitig zum Schulbeginn wurde die neue multifunktionale Mensa an die Schule übergeben.

Parkhaus Schüco International

Illuminierung der Facid-Fassade am neuen Parkhaus der Firma Schüco

Schlüsselübergabe Erweiterung Rathaus Verl

Symbolische Übergabe des Gebäudeschlüssels während des Festaktes an den Bürgermeister der Stadt Verl Herrn Esken durch Karsten Schlattmeier.

Einweihung Erweiterung Rathaus Verl

Feierliche Einweihung der Erweiterung des Rathauses im neuen Ratssaal der Stadt Verl am 7. November.

Neubau Mensa

Fertigstellung der Mensa an der Grundschule Knetterheide.

Fertigstellung Erweiterung Rathaus Verl

Termingerechte Fertigstellung der Erweiterung des Rathauses Verl.

Zuschlag Fassadensanierung Rathaus Bad Salzuflen

Schlattmeier Architekten erhalten den Zuschlag im VgV-Verfahren für die energetische Fassadensanierung und Aufstockung des Rathauses Bad Salzuflen.

Preis Erweiterung der Gesamtschule und Neubau des Hallenbades in Verl

Schlattmeier Architekten erhalten für ihren Wettbewerbsbeitrag               den 3. Preis

3. Preis Neubau Parkhaus am Kreishaus in Gütersloh

Schlattmeier Architekten erhalten für ihren Wettbewerbsbeitrag               den 3. Preis

Zentrallager Pikeur Werther

Schlattmeier Architekten planen für den ostwestfälischen Spezialanbieter von Reitsportmoden das neue automatische zentrale Lager.

1. Preis Neubau Grundschule Bad Oeynhausen

Verleihung des 1. Preises an das Büro Schlattmeier Architekten, vertreten von Karsten Schlattmeier (Mitte) durch Bad Oeynhausens Bürgermeister Achim Wilmsmeier und Schulleiterin Anke Lehmann.

Erweiterung Rathaus Verl

Bei eisigem Wind wurde der Grundstein für die Erweiterung des Rathauses Verl gelegt.                          Errichtet wird ein neuer multifuktionaler Ratssaal       mit zwei weiteren Verwaltungsebenen, der      über eine Glasfuge an das vorhandene Rathaus angebunden wird.

Wettbewerb Neubau Grundschule Bad Oeynhausen

Schlattmeier Architekten freuen sich über den 1. Preis beim europaweiten Wettbewerbsverfahren für den Neubau der Grundschule in Bad Oeynhausen

Neubau Parkhaus Schüco International

Installation des Mock-Up der geplanten Textilfassade an das Tragwerk des neuen zentralen Parkhauses in Bielefeld.

Neubau Parkhaus Schüco International

Wenn es läuft…..

Wettbewerb Erweiterungsbau Rathaus Springe

Schlattmeier Architekten erhalten für ihren Wettbewerbsbeitrag 
den 2. Preis.

Neubau Parkhaus Schüco International

Schlattmeier Architekten konzipieren in Zusammenarbeit mit          3XN Architekten aus Dänemark die Fassade für das neue zentrale Parkhaus.

Zentrallager Pikeur Werther

Schlattmeier Architekten planen für den ostwestfälischen Spezialanbieter von Reitsportmoden das neue automatische zentrale Lager.

Neubau Parkhaus Schüco International

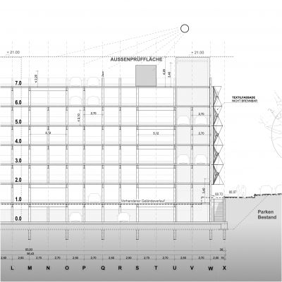
Schlattmeier Architekten konzipieren für Schüco das neue zentrale Parkhaus mit Außenprüffläche.

Wettbewerb Anerkennung Grundschule Münster

Schlattmeier Architekten erhalten für ihren Wettbewerbsbeitrag für den Neubau einer 2-zügigen Grundschule mit Mensa eine Anerkennung.

Wettbewerb 1. Preis Herford ans Wasser

Kortemeier Brokmann Landschaftsarchitekten erhalten in Zusammenarbeit mit Schlattmeier Architekten für ihren Wettbewerbsbeitrag den 1. Preis.

Windmann Glas Herford

Energetische Sanierung des Verwaltungsgebäudes der Firma Windmann Glas und Erweiterung der Glasausstellung.

Zentrallager Pikeur Werther

Schlattmeier Architekten planen für den ostwestfälischen Spezialanbieter von Reitsportmoden das neue automatische zentrale Lager.

Schlattmeier Architekten – kulinarisch

Das Team von Schlattmeier Architekten macht einen kulinarischen Ausflug zum Kochstudio Andreas Pöschel in Bielefeld.

Neubau Parkhaus Schüco Internationa

Schlattmeier Architekten konzipieren für Schüco das neue zentrale Parkhaus mit Außenprüffläche.

Rheda-Wiedenbrück Quartier Ringstraße

Schlattmeier Architekten sind mit der Planung von 100 Wohnungen in Rheda-Wiedenbrück auf Basis eines Wettbewerbserfolges beauftragt.

Freiherr-vom-Stein Gymnasium

Der mulifunktionale Mensa/Aulabereich verbindet die Schule mit dem tiefergelegenen Außenbereich.

Rathaus Verl

Schlattmeier Architekten erweitern das Rathaus in Verl um einen neuen Ratssaal sowie zwei Verwaltungsebenen.

Windmann Glas

Das zentrale Verwaltungsgebäude der Firma Windmann Glas wird energetisch saniert und erhält einen Ausstellungsbereich zum Thema Glas.

Bildungscampus Herford Fördermittel

Herzlichen Glückwunsch!

Die Stadt Herford erhält den Zuschlag von 3,4 Mio. Euro Fördergeldern für die Umsetzung des Bildungscampus. Schlattmeier Architekten konnte die Stadt mit animierten Bildern unterstützen.

Moysig Retail Design D40 Office

Schlattmeier Architekten plant für das kreative Team von Dirk Moysig die neue Adresse an der
Diebrocker Straße.

Sanierungskonzept

Schlattmeier Architekten entwickelt für ein Wohl-Hochhaus mit 72 Wohnungen nachhaltiges Sanierungskonzept.

Bürgerbüro Herford

Das Bürgerbüro der Stadt Herford wird barrierefrei in das historische/
denkmalgeschützte Rathaus integriert. 

Pius-Höfe Bielefeld

Schlattmeier Architekten erhalten den Zuschlag beim eingeladenen Wettbewerb für das Gemeindezentrum mit
23 Service-Wohnungen am Altenheim St. Pius in Bielefeld.

Otto VertriebNeubau Ausstellungs- und Bürogebäude

Das neue Büro- und Ausstellungsgebäude des
Otto Vertriebs wurde termingerecht fertiggestellt.

Praktikum bei Schlattmeier Architekten

Finn Reinkensmeyer hat in seinem 2-wöchigen Praktikum sein Traumhaus geplant und im Modell umgesetzt.

Bugatti Hauptverwaltung

Der Fotograf Thorsten Kleinfeld fotografiert das Verwaltungsgebäude der Firma Bugatti.

www.tk-fotoart.de

Robert-Boehringer-Gemeinschaftsschule Winnenden

Wettbewerb 5.Preis

Schlattmeier Architekten erhalten für ihren Wettbewerbsbeitrag den 5.Preis.

Wohnbebauungin den Werregärten

Für die Wohnbebauung in den Werregärten wird mit dem 
1. Baustein begonnen.

Quartier Ringstraße Rheda Wiedenbrück

Wettbewerb 1.Preis

Schlattmeier Architekten erhalten für ihren Wettbewerbsbeitrag den 1.Preis.

Otto VertriebNeubau Ausstellungs- und Bürogebäude

Die Baugenehmigung ist erteilt.
Bald geht es los.

Ernst-Loisen-Heim

In elf Bauabschnitten wird das Ernst-Louisen-Heim, unter laufendem Betrieb an die zukünftigen Anforderungen angepasst. Der Nordtrakt wurde fertiggestellt, die Arbeiten am Südtrakt beginnen.

GrundschuleSürenheide

Nach Beendigung der Bauarbeiten wurden im August auch die Außenanlagen fertig gestellt.

Kindergarten SennewindPaderborn

Erweiterung, Ausbau und Sanierung des Kindergartens Sennewind in Paderborn einschließlich U3 Betreuung.
Die Bauarbeiten des 2. Bauabschnitts sind abgeschlossen.

Rathaus Murnau

Wettbewerb Ankauf

Schlattmeier Architekten erhalten für ihren Wettbewerbsbeitrag einen Ankauf.

BerufsschulzentrumHerford

Der 10.000m² große Pausenhof der
3 Berufsschulen wurde nach Plänen von Schlattmeier Architekten neu gestaltet.
Im gleichem Zuge wurde die Tiefgarage nach 40 Jahren Bestand saniert.

Kindergarten SennewindPaderborn

Erweiterung, Ausbau und Sanierung des Kindergartens Sennewind in Paderborn einschließlich U3 Betreuung.
Die Bauarbeiten beginnen.

Ernst-Louisen-Heim  

In elf Bauabschnitten wird das Ernst-Louisen-Heim, unter laufendem Betrieb, über einen Zeitraum von
1 1/2 Jahren, an die zukünftigen Anforderungen angepasst. Die nördliche Eingangsfassade wurde bereits fertiggestellt.

BredehorstBad Salzuflen

Amsterdam 

Architektur-Exkursion

Schlattmeier Architekten erleben moderne Architektur in Amsterdam.

Graphisoft News 

In der aktuellen Ausgabe der Graphisoft News ist ein Artikel über die Arbeiten von Schlattmeier Architekten erschienen.
Im Besonderen werden die Projekte bugatti, Rathaus Verl und BRAX besprochen. 

Ernst-Louisen-Heim 


Der Erste von elf Bauabschnitten am Ernst-Louisen-Heim hat begonnen.
Mit Rücksicht auf den laufenden Betrieb wird das Altenheim mit gut 120 Zimmern für die zukünftigen Anforderungen modernisiert.

Wohnbebauungin den Werregärten

Der Entwurf für die Wohnbebauung in den Werregärten wird im Beirat für Stadtbildpflege und dem Bauausschuss der Stadt Herford vorgestellt.

D40 Loft 

Schlattmeier Architekten planen Loftwohnungen in einer Industriehalle in Herford.

Sporthalle Lemgo 

Wettbewerb 3. Preis

Schlattmeier Architekten erhalten für ihren Wettbewerbsbeitrag für den Neubau der Sporthalle in Lemgo den 3. Preis.

Gesamtschule Hürth 

Wettbewerb Anerkennung

Schlattmeier Architekten erhalten für den Wettbewerbsbeitrag eine Anerkennung.

Gesamtschule Lippstadt 

Wettbewerb 2. Preis

Schlattmeier Architekten erhalten den 2. Preis im europaweiten Wettbewerb für die Gesamtschule Lippstadt.

BRAX Leineweber 

Der Showroom von BRAX Leineweber über den Dächern von Herford wird termingerecht fertiggestellt.

Sparkasse Herford 

Am Sonntag, den 21. Oktober 2012, ist das Filialgebäude der Sparkasse Herford in Eilshausen eingeweiht worden.

Energetisch erhält es den Standard „GreenBuilding“.

BRAX Leineweber 

Die Kontur der Aufstockung des Showrooms ist mit den aufgestellten Stahl- rahmen bereits ablesbar.

Marktplatz Bünde 

Wettbewerb Ankauf

Schlattmeier Architekten erhalten für den Wettbewerbsbeitrag einen Ankauf.

Sparkasse Hamm 

Wettbewerb 3. Preis

Mit dem 3. Preis wird der Wettbewerbsbeitrag der Schlattmeier Architekten ausgezeichnet.

Schuster Manufaktur Siegen 

Gutachten 1. Rang

Schlattmeier Architekten erhalten im Gutachterverfahren den 1. Rang für ihren Entwurf des nachhaltigen Verwaltungs-, Ausstellungs- und Produktionsstandortes.

Bugatti Hauptverwaltung 

Mit einer ‚very special night‘ wird das neue Verwaltungsgebäude der Firma Bugatti offiziell eingeweiht und erstrahlt für diesen Anlass farbenfroh.

Grundschule Sürenheide 

Die Bauarbeiten für die Erweiterung der Grundschule beginnen.

BugattiHauptverwaltung

Nach gut einjähriger Bauzeit ist das neue Verwaltungsgebäude der Firma Bugatti fertiggestellt und wird bezogen.

BRAX Leineweber

Das Ensemble der Firma Leineweber wird um einen Showroom über den Dächern von Herford erweitert.

Sparkasse Herford 

Baubeginn der Filiale in Eilshausen

Hettich 

Wettbewerb 2. Preis 

Schlattmeier Architekten erhalten für Ihren Wettbewerbsbeitrag für die Erweiterung des Entwicklungsgebäudes der Firma Hettich den 2. Preis.  

Bugatti Hauptverwaltung 

Nachdem das Gerüst abgebaut ist, ist die Fassade mit ihren filigranen, geschwungenen Elementen im Ganzen zu sehen.

Rathaus Extertal  

Wettbewerb 3. Preis

Schlattmeier Architekten erhalten für Ihren Wettbewerbsbeitrag den 3. Preis.

Sparkasse Versmold 


Gutachten

Schlattmeier Architekten beteiligen sich am Gutachten für den Umbau und die Erweiterung der Stadtsparkasse Versmold.

Rathaus Verl

Der Vlothoer Fotograf Uli Funke nutzt als Kulisse für einen aktuellen Klingenthal Prospekt das Verler Rathaus.

Verl.er.leben 

Wettbewerb 2. Preis

Schlattmeier Architekten erhalten im Planungsteam mit Niemann Steege, Düsseldorf und Kortemeier Brokmann Landschaftsarchitekten, Herford den 2. Preis für ihr Entwicklungskonzept.  

Bugatti Hauptverwaltung

Schon während der Rohbauarbeiten ist die expressive Gebäudeform zu erkennen.

Hanse Carree 

Die Entwicklung und Revitalisierung des ehemaligen Kaufhof-Geländes Herford wird in einer weiteren Planungsstufe dem Bauausschuss und dem Beirat für Stadtbildpflege vorgestellt.  

Dahlmannschule Frankfurt 

Wettbwerb Anerkennung

Schlattmeier Architekten erhalten im europaweiten Wettbewerb für die Dahlmannschule in Frankfurt am Main eine Anerkennung. 

Rathaus Bad Oeynhausen 

Nach Fertigstellung der Arbeiten ist die denkmal- geschützte Natursteinfassade in ihrer vollen Wertigkeit und Pracht zu sehen.
Die Fassade wurde unter heutigen energetischen Gesichtspunkten mit Mitteln des Konjunkturpaketes II in ihren wesentlichen Bestandteilen neu aufgebaut.  

Fassadensanierung Freiherr-vom-Stein-Gymnasium Bünde  

Die Fassadensanierungen sind abgeschlossen.
Das entwickelte Farbkonzept gibt dem Schulgebäude eine positive Erscheinung und wird in Zukunft im Logo der Schule erscheinen.
Die Maßnahme wurde durch das Konjunkturpaket II finanziert.  

Bugatti Hauptverwaltung  

Mit einem gemeinsamen Spatenstich werden die Bauarbeiten für das Verwaltungsgebäude des Modeunternehmens Bugatti begonnen.  

Auszeichnung vorbildlicher Bauten NRW 2010 

Das Ministerium für Bauen und Verkehr des Landes NRW hat zusammen mit der Architektenkammer NRW die Stadt Verl und Schlattmeier Architekten für vorbildliches Bauen beim Rathaus Verl ausgezeichnet.

Grundschule Sürenheide

Im eingeladenen Wettbe- werbsverfahren für die energtische Sanierung, Umbau und Erweiterung der Sankt Georg Grundschule in Sürenheide wird der Beitrag der Schlattmeier Architekten mit dem 1. Preis ausgezeichnet. 

Schulzentrum Schweich

Wettbewerb Anerkennung
(4. Rang)

Im EU-weiten Wettbewerbs- verfahren für die Erweite- rung des Schulzentrums Schweich um ein Gymnasium erlangen die Schlattmeier Architekten den 4. Rang. 

Fassadensanierung Freiherr-vom-Stein- Gymnasium Bünde 

Mit Mitteln des Konjunkturpaketes zwei wird die Fassade des Freiherr-vom-Stein Gymnasium Bünde saniert.
Schlattmeier Architekten erhalten den Auftrag für die Planung und Umsetzung.  

Rathaus Bad Oeynhausen

Schlattmeier Architekten erhalten den Auftrag für die energetische Fassaden-sanierung unter Berück-sichtigung der historischen Vorgaben für das denkmal-geschützte Rathaus in Bad Oeynhausen.

Technisches Rathaus Bielefeld

Wettbewerb Anerkennung
(4. Rang)

Im europaoffenen General-planer Wettbewerb erhalten die Schlattmeier Architekten eine Anerkennung für das Dienstleistungsgebäude.

Green Building 

Die Sparkasse Herford erhält für die energetische Fassadensanierung des Dienstleistungszentrums an der Engerstraße die Zertifizierung als „Green Building“. Der Primär- energiebedarf des 70er Jahre Gebäudes wurde um 35% reduziert. 

Bugatti Hauptverwaltung  

Gutachten 1. Rang

Schlattmeier Architekten erhält im Gutachterverfahren für die Erweiterung des Verwaltungsgebäudes der F.W. Brinkmann Firmengruppe den 1. Rang und wurde mit der Planung beauftragt.  

BRAX Leineweber

Entrée Hauptverwaltung

Die Neugestaltung der denkmalgeschützten Fassade und des Vorplatzes wird durch die großzügigen Öffnungen im Foyer fortgesetzt.

Ernst-Barlach-Realschule

Termingerecht sind die energetischen Fassaden-sanierungsarbeiten des Schulgebäudes vor dem Winter abgeschlossen. Die klare Gebäudestruktur des 70er Jahre Baus wird durch die anthrazite Argetonfassade klar herausgearbeitet. 

Sparkasse HerfordDienstleistungszentrumEngerstraße

Das 70er Jahre Verwaltungsgebäude der Sparkasse Herford erhält eine energetische Fassadensanierung, die den Standard des „Green- building“ erfüllt und zertifiziert wird. Zeitgleich wird angrenzend eine Schadstoffsanierung durchgeführt.  

Musikschule Hamm  

VOF-Verfahren  

Peter Lacke, China

Teilabnahme im April 2009 – Die Produktion kann ab Frühsommer 2009 beginnen 

Neubau Grundschule „Am Rautenschemm“ Meschede  

VOF-Verfahren 2. Rang

Schlattmeier Architekten erlangt als Generalplaner für den Neubau der Grundschule „Am Rautenschemm“ den 2. Rang.

Volksbank Hamm


Wettbewerb 2. Preis

Neubau eines Kompetenz- und Veranstaltungszentrums

BRAX Leineweber 

Der 3. und letzte Bauabschnitt der Fassadensanierung ist abgeschlossen 

Peter-Lacke, China  

Die Ausschreibungen laufen.
Ein kurzer Zwischenbericht aus China.

Peter-Lacke, Ungarn  

Die Ausschreibungen laufen.
Ein kurzer Zwischenbericht aus Ungarn.

Leintorschule Nienburg   

2. Bauabschnitt Leintorschule Nienburg geht in Betrieb

Ausstellung Thomas Koch   

Die Werke von Thomas Koch in den Räumen von Schlattmeier Architekten   

Peter-Lacke, Ungarn

Neubau einer Lackproduktion in Ungarn

BRAX Leineweber

Verleihung der Pöppelmannmedaille für die Umgestaltung der historischen Fassade und des Vorplatzes

Fertigstellung Vorplatz Brax Leineweber

Peter-Lacke, China

Schlattmeier Architekten plant Lackfabrik in China

INOMETA Technologie Verwaltung

Neubau eines Verwaltungsgebäudes

INOMETA Technologie Produktion

Termingerecht geht die Produktionshalle P3 mit eingeschobenem Hochregallager der INOMETA Technologie GmbH in Betrieb.

Arvato Systems / Bertelsmann

Umbau eines Rechenzentrums in Büroarbeitsplätze auf zwei Ebenen

SparkasseBünde-Ennigloh

Sparkasse Bünde-Ennigloh
Tag der Architektur NRW
16.06.2007, 10.00-12.00 Uhr

Das von Grund auf umgebaute und sanierte Sparkassengebäude ist vom Vorstand seiner Nutzung übergeben worden.

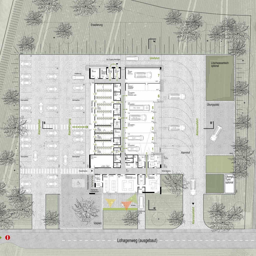
Feuerwehrgerätehaus undRettungswache Verl

Wettbewerb 3. Preis

Das Feuerwehrgerätehaus des Löschzuges Verl wird nach heutigen Anforderungen neu konzipiert.