Ehlebracht AG E4 Media

Direktauftrag
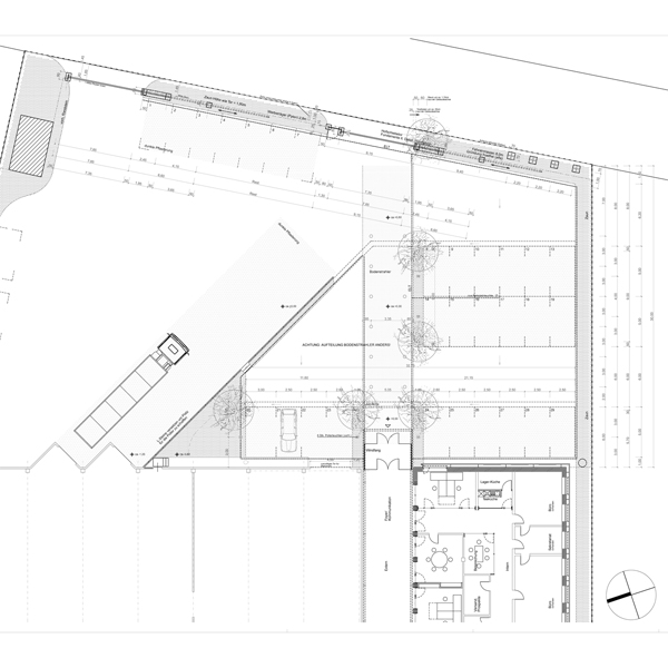
Das vorhandene Produktionsgebäude sollte für den neuen Auftritt der E4 Media mit ihren innovativen Produkten ausgebaut werden. In der vorhandenen Gebäudestruktur wurde die Verwaltung an einen modernen Standard angepasst, die Fassaden durch Stahlrahmen gegliedert. Sie tragen Werbebanner sowie den Sonnenschutz entlang der Südfassade.

« zurück zur Übersicht