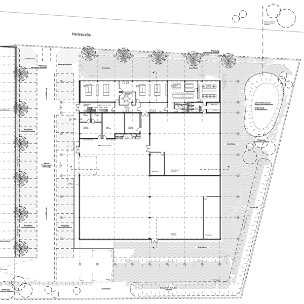
Gewerbebau Leuco

Direktauftrag

Die Wirtschaftlichkeit der neu zu errichtenden Gewerbehalle für die Firma Leuco stand im Vordergrund.
Funktionale Abläufe und die Bereiche der Verwaltung und Sozialtrakt wurden den Bedürfnissen der Nutzung entsprechend umgesetzt.
Die durch Glasflächen gegliederte Aluminiumbox bietet helle lichtdurchflutete Räume in den unterschiedlichen Bereichen.

« zurück zur Übersicht