Sparkasse Herford

Wettbewerb 1. Preis

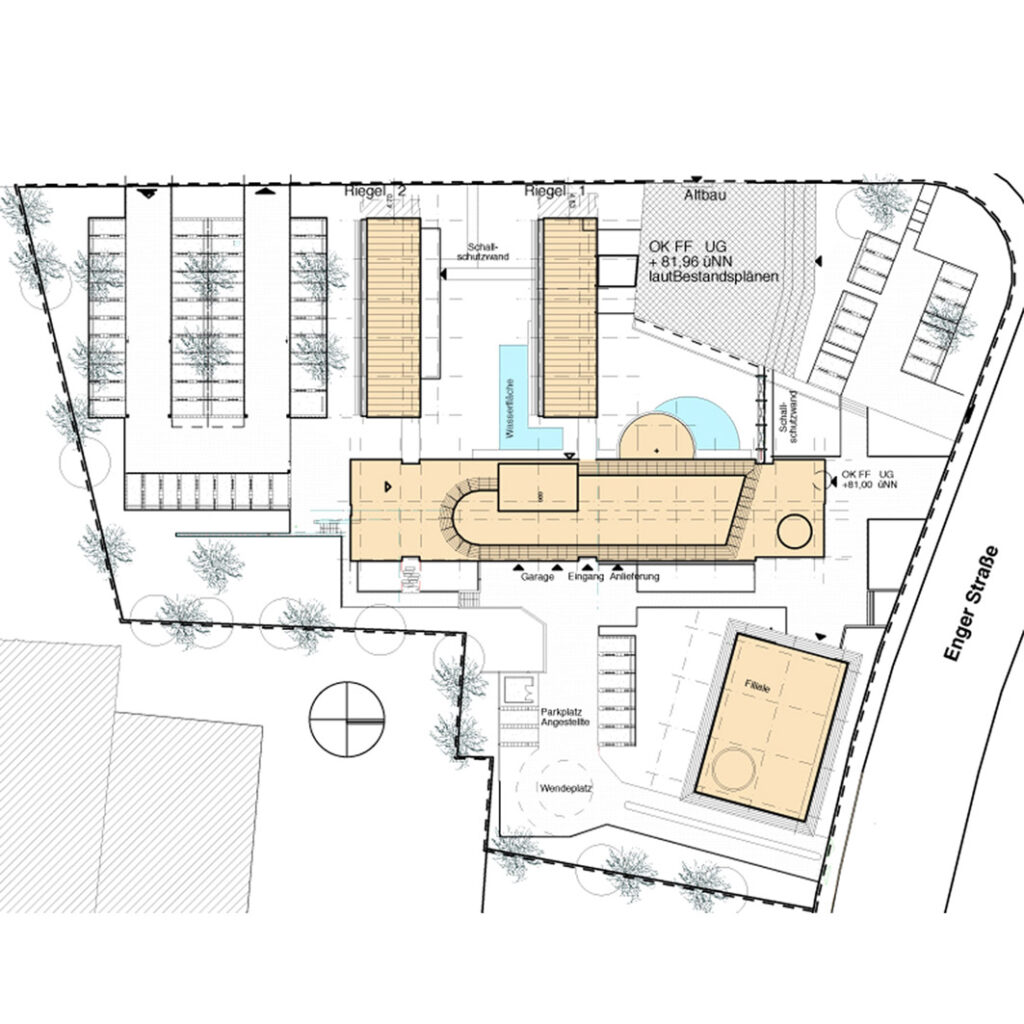
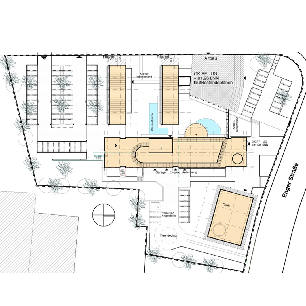
An der Engerstraße entstand für die Sparkasse Herford ein modernes Dienstleistungsgebäude. Durch belichtete und belüftete Innenhöfe entwickelt sich die Gebäudestruktur um ein vorhandenes Verwaltungsgebäude mit der zentralen Computertechnik herum. Die wirtschaftliche Gebäudestruktur wird durch die gewendelte Treppe zur Engerstraße, die Kantine als Penthouse auf dem Dach, sowie das zweigeschossige Filialgebäude zu einem interessanten Ensemble entwickelt.

« zurück zur Übersicht