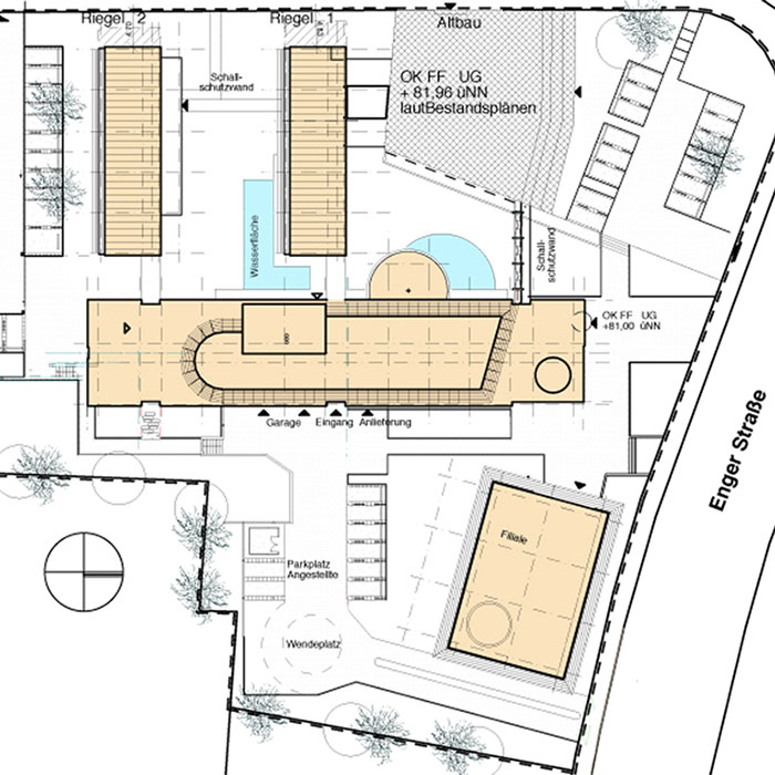
Sparkasse Herford Dienstleistungszentrum Engerstraße

« zurück zur Übersicht